Rhythm + Hue

Rhythm + Hue is a San Diego interior design project rooted in reinvention. After relocating from another country, this family set down roots near their two youngest children in college, creating a home designed for connection, creativity, and everyday ease—one that could comfortably host four adult children while still feeling deeply personal.

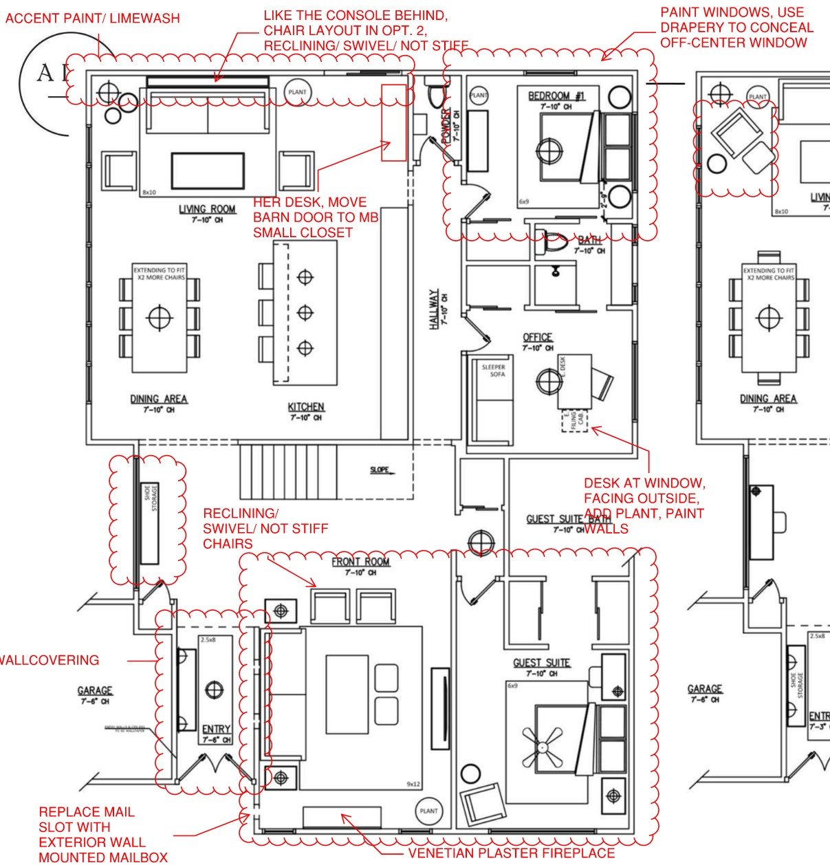
The home was newly renovated prior to our involvement, but leaned neutral and understated. ADS led a light residential renovation alongside full furnishings and art curation, adding depth, contrast, and character.

A wallpaper-wrapped entry makes an immersive first impression, with architectural cutouts offering glimpses into a moody lounge beyond. Throughout the home, bold color, layered textures, and sculptural elements reflect the clients’ love of music and funk, while the primary suite is intentionally calm, tactile, and curated. The result is a balanced, expressive San Diego home designed to evolve with the family.

Project Lifespan

Your space… Designed

Previous
Previous

Worn Light

Next
Next

Coronado Crush